良工閥門不銹鋼法蘭球閥介紹:
球(qiu)閥(fa)(fa)和(he)(he)閘閥(fa)(fa)是同屬一個(ge)類(lei)型的閥(fa)(fa)門,區別在(zai)它的關(guan)閉件是個(ge)球(qiu)體(ti),球(qiu)體(ti)繞閥(fa)(fa)體(ti)心線作旋轉來(lai)達到開(kai)啟、關(guan)閉的一種閥(fa)(fa)門。 球(qiu)閥(fa)(fa)在(zai)管路中主要用來(lai)做(zuo)切斷、分配和(he)(he)改變介(jie)質的流動方向(xiang)。
良(liang)工(gong)閥(fa)門不銹鋼法蘭球(qiu)閥(fa)特點
1、先進的閥(fa)座(zuo):聚(ju)多年球閥(fa)制造經驗而設(she)計的閥(fa)座(zuo),確保閥(fa)門密(mi)封,磨擦系數低,操作力(li)矩(ju)小、多種閥(fa)座(zuo)材料、適應(ying)范圍廣。
2、開(kai)關無誤(wu)的手(shou)柄:采用扁頭閥桿,與手(shou)柄的連接不會錯(cuo)位,從而保證手(shou)柄指示的開(kai)關狀態與閥一(yi)致辭。
3、鎖緊裝(zhuang)置:為(wei)防止閥門(men)開(kai)關(guan)誤操作,在閥門(men)全(quan)開(kai)、全(quan)關(guan)位置有鎖定孔,確保(bao)閥門(men)處于正確的位置。
4、閥(fa)桿(gan)防(fang)(fang)飛(fei)結(jie)構:閥(fa)桿(gan)為下裝式(shi),防(fang)(fang)止受壓飛(fei)出,同時可在火(huo)災后,與閥(fa)體形成金屬接(jie)觸,確保閥(fa)桿(gan)密(mi)封(feng)。

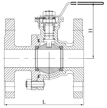
良工閥門不銹鋼法蘭球閥PN1.6 MPa主要連接尺寸及重量
公稱通徑(jing)DN | 15 | 20 | 25 | 32 | 40 | 50 | 65 | 80 | 100 | 125 | 150 | 200 |
L | 130 | 140 | 150 | 165 | 180 | 200 | 220 | 250 | 280 | 320 | 360 | 400 |
H | 59 | 63 | 75 | 105 | 95 | 107 | 142 | 152 | 178 | 252 | 272 | 342 |
W | 130 | 130 | 160 | 180 | 230 | 230 | 400 | 400 | 650 | 1050 | 1050 | 1410 |
Wt(㎏) | 2.5 | 3 | 5 | 6 | 7 | 10 | 15 | 19 | 33 | 58 | 93 | 160 |
